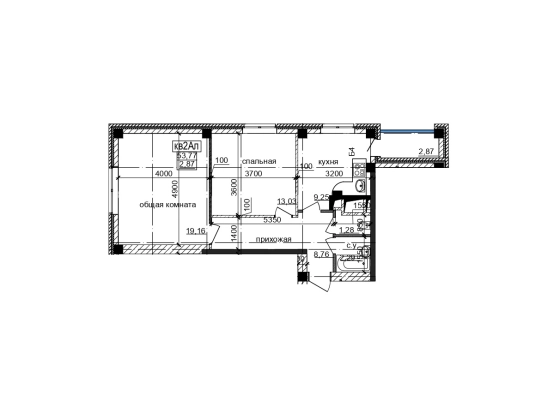
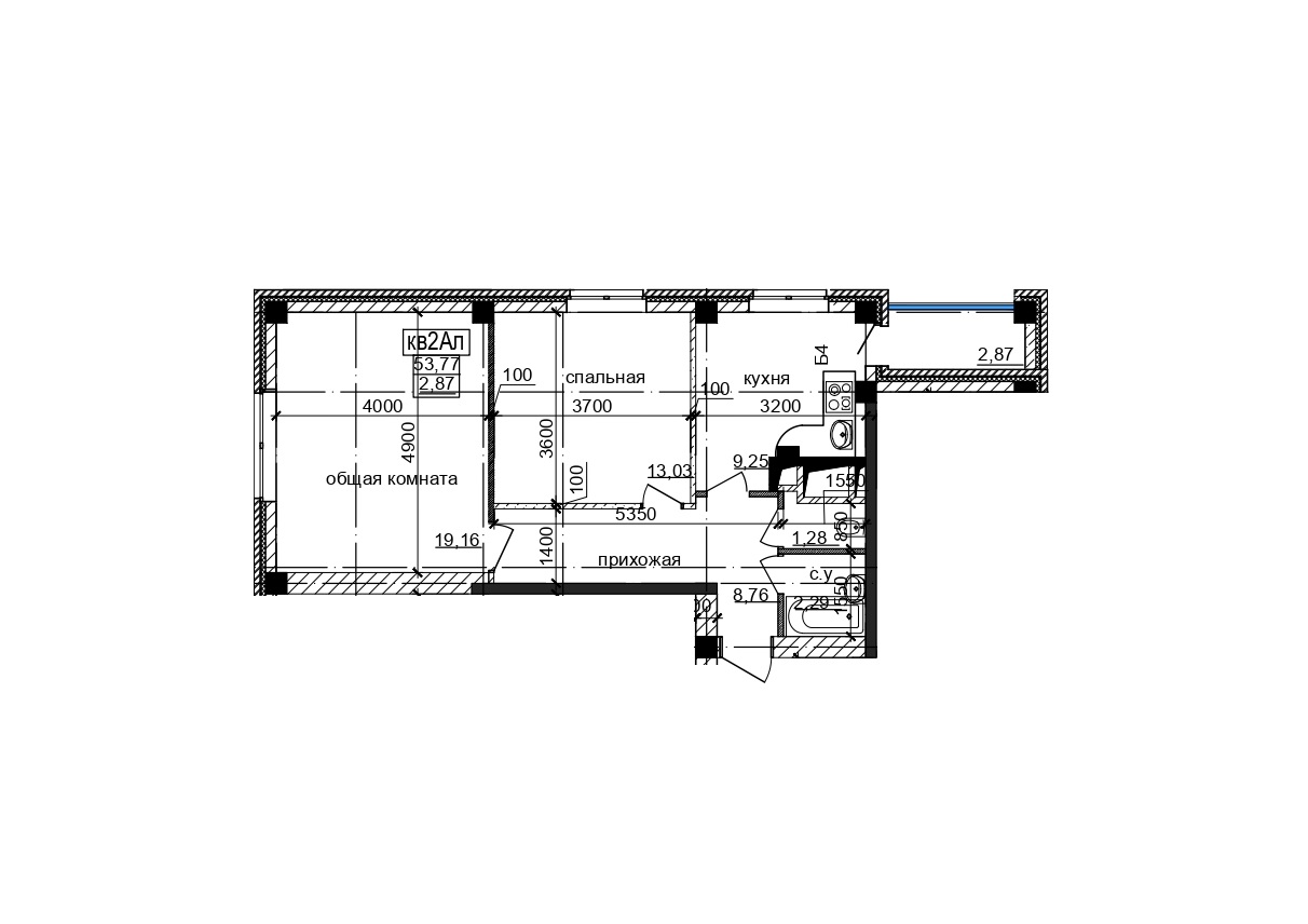
Продается 2-х комн. квартира, 54.8 кв.м., 3/10 эт
Обзор№ - 1155
| Стоимость | 6 200 000 |
|---|---|
| Доля в квартире | Нет |
| Комнат в квартире | 2 |
| Площадь, кв.м. | 54.8 |
| Этаж | 3 |
| Этажность | 10 |
| Материал стен | кирпично-монолитный |
Адрес
| Населенный пункт | Горячий Ключ |
|---|---|
| Улица | улица Ленина |
Новый дом 2023 года постройки



