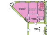
Продается 2-х комн. квартира, 56.7 кв.м., 2/4 эт
Обзор№ - 1986
| Стоимость | 8 800 000 |
|---|---|
| Доля в квартире | Нет |
| Комнат в квартире | 2 |
| Площадь, кв.м. | 56.7 |
| Этаж | 2 |
| Этажность | 4 |
| Материал стен | Кирпич |
Адрес
| Населенный пункт | Горячий Ключ |
|---|---|
| Улица | улица Кубанская |
квартира с ремонтом











