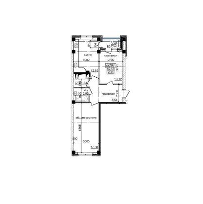
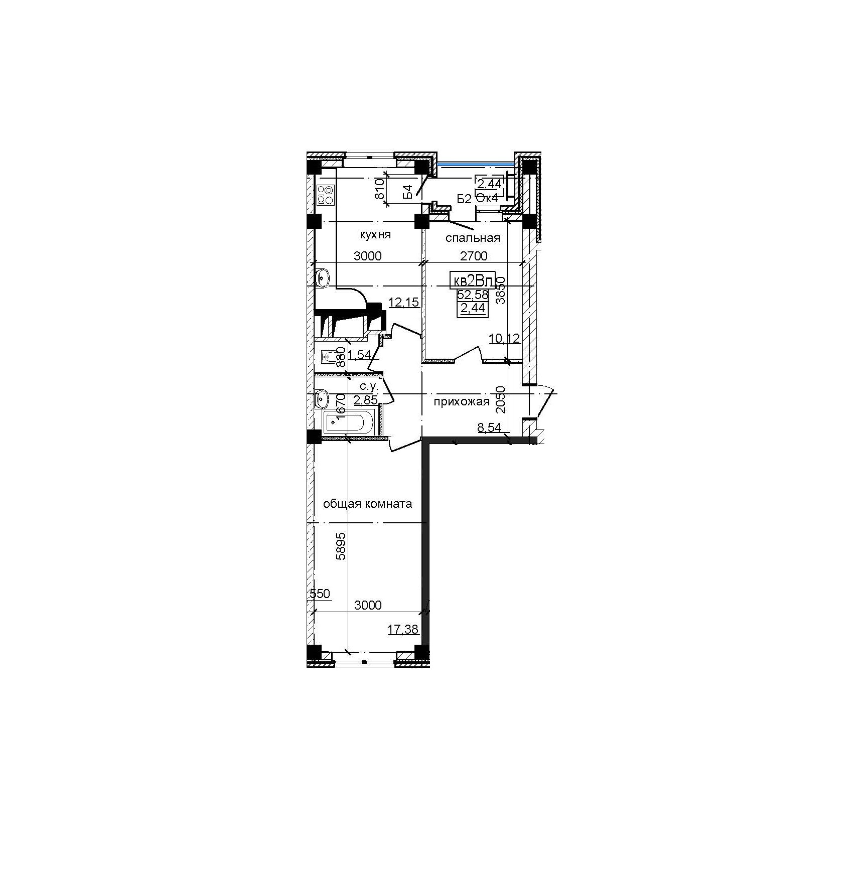
Продается 2-х комн. квартира, 53.4 кв.м., 1/10 эт
Обзор№ - 1570
| Стоимость | 7 800 000 |
|---|---|
| Доля в квартире | Нет |
| Комнат в квартире | 2 |
| Площадь, кв.м. | 53.4 |
| Этаж | 1 |
| Этажность | 10 |
| Материал стен | Кирпич |
Адрес
| Населенный пункт | Горячий Ключ |
|---|---|
| Улица | улица Ленина |
В избранное Квартира
Квартира в новом доме, с ремонтом





